
This project marks my first step onto the international stage—both through the competition itself and the collaboration it brought. I couldn’t have asked for a more meaningful opportunity. The competition is profoundly special: to design a school in Palestine.
As a Muslim—and even beyond that, simply as a human being—I cannot ignore the cruelty and suffering endured by the Palestinian people. I truly believe that contributing to this competition, regardless of winning or losing, is a small but meaningful way to support their cause.
In this project, I collaborated with my fellow Indonesian colleagues, Jauhar and Yafie, as well as Sara, a dear friend from Palestine. Together, we aimed to create a design for a modular and flexible school—one that can be assembled and relocated when needed, but also has the potential to become permanent should conditions allow.


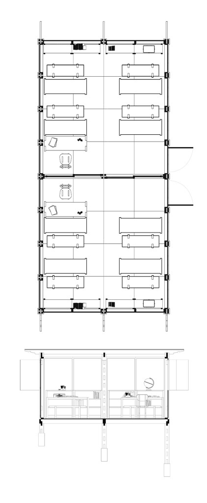
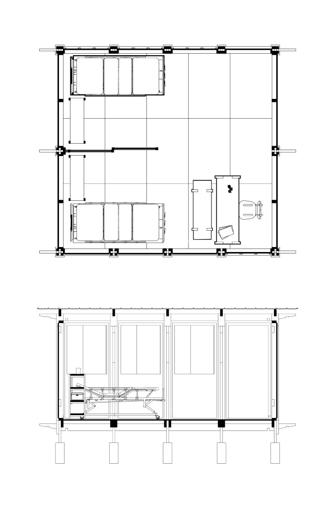
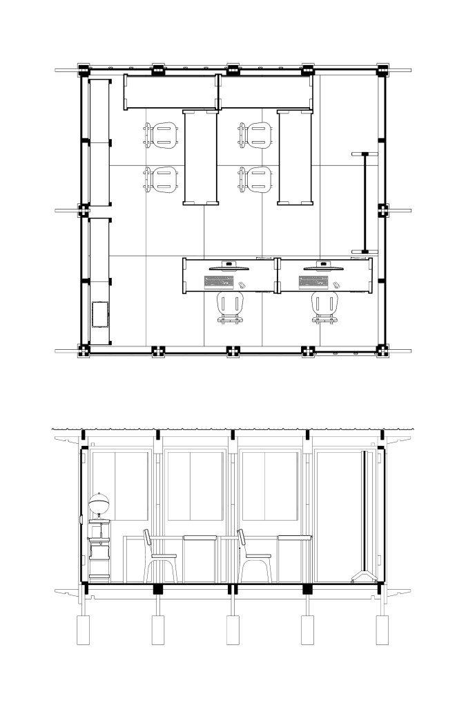
The project site is located in Khan al-Ahmar village, Palestine, on a hillside overlooking the community. One of the main challenges was working with the site’s natural contours, which we embraced by designing a layout that follows the terrain. Although all building masses share a similar form due to their modular construction, the interior spaces are designed to be flexible and adaptable. The school consists of five primary functions: classrooms, a multipurpose hall, a teachers’ room, a medical room, and toilets. Classrooms are spread throughout the site, while the centrally placed teachers’ room allows for effective supervision and quick emergency response. To support both the school and the surrounding community, the multipurpose hall and medical room are positioned at the base of the site, providing easy access for local residents as well as students


The use of foldable furniture ensure the flexibility of the interior spaces. The folded furniture can be stowed inside the class or underneath the class. These furniture is also will be able to be transported inside the folded modules of wall and floor panels.

Spaces underneath the classroom could be used as storage or other useful functions such us for water containers collecting rain water, for temporary shelter to sleep in case of emergency, to grow small animals like chicken (depends on the function in the interior above) or to grow vegetables in hydroponic methods.




The high student number prove to be a challenge on how the lessons should be held. We design the classroom so that it could be divided when needed into two smaller classroom.


The building could also be used in different ways, especially functuins that benefits the village residents. Like multipurpose hall where people could gather and do communal activities. This has been increasingly important as they are facing many challenges that demands unity among the village residents.




Smaller sized buildings could be an option too. Functions such as medical room, teachers room and toilets.






Desc
The project represents my international debut and collaboration to design a school in Palestine, addressing the suffering of its people. Teaming with colleagues, we proposed a modular school in Khan al-Ahmar, adaptable to terrain and community needs. Features include flexible classrooms, a multipurpose hall, and versatile uses for local residents. Designed By: Farrel Adyuta Jauhar…
People





What do you think?