The RED School is a 4th-semester design studio project from my bachelor’s studies. This studio focused on teaching students the fundamentals of multi-story building design, emphasizing spatial organization, system integration, and functionality. The project envisions an elementary school in East Surabaya, designed to foster an engaging and comfortable learning environment.


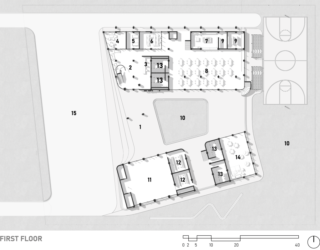
The school comprises two primary and two secondary buildings, strategically arranged to optimize functionality and environmental performance. The taller main building, oriented east-west, minimizes heat gain and houses private classrooms. The second building, positioned to align the mosque with the Qibla, accommodates communal spaces and serves as a visual and acoustic barrier for the garden. Additionally, an elevated mass connects the two main buildings, forming bridges that house teachers’ rooms and labs, ensuring visual access and connectivity across all areas.


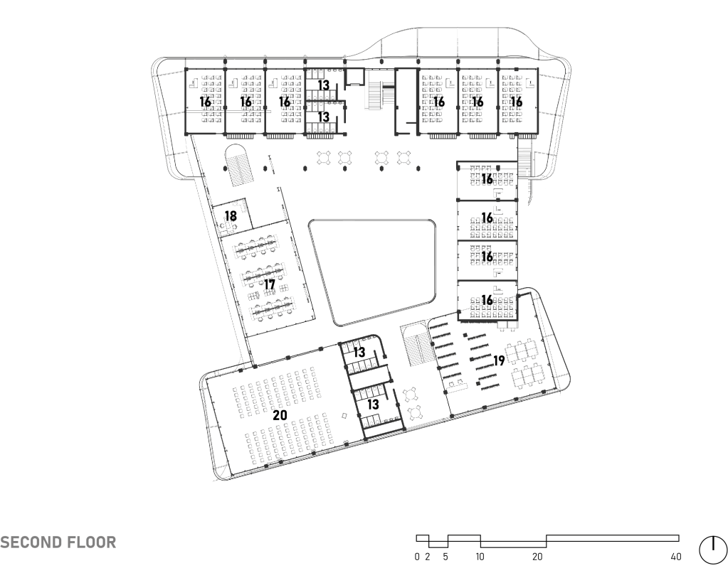
The spatial organization is carefully designed both vertically and horizontally to create an optimal learning experience. Upon arrival, students are greeted by an open courtyard, which helps them feel at ease and reduces any anxiety about attending school. Classrooms are located on the second floor and above, distancing them from street noise, while the centrally positioned teacher’s area provides a clear vantage point to oversee the entire school. Communal spaces are grouped together to encourage interaction and engagement.







The façade features red perforated metal, inspired by the national uniform of Indonesian elementary students. This material choice helps shield the interiors from excessive noise and direct sunlight while still allowing for natural ventilation. The façade establishes the building’s distinctive aesthetic while enhancing environmental comfort.




Despite its multi-level design, the school remains an open and explorative space for students. Each level is designed with ample circulation and openings, allowing students to move freely and discover their environment. Corridors are semi-open and oriented toward the courtyard, creating a less restrictive atmosphere compared to traditional schools. The regular placement of columns provides a structured sense of order, maintaining balance between openness and discipline.


The project aims for seamless integration between spatial organization, structure, and MEP systems. The building employs a steel frame as its primary structural system, ensuring flexibility and efficiency. Spaces are designed to be versatile, allowing students to use them for both learning and play. The central courtyard serves this dual purpose, reinforcing an inward-facing spatial orientation that enhances safety and inclusivity. It also allows natural light to penetrate the building, preventing the massing from feeling overwhelming.



Rather than dominating open spaces, the architecture is designed to enhance them. Glass openings on the ground floor promote transparency and connectivity, while the vibrant red color complements the playful nature of the open spaces.


Overall, the RED School is an exercise in balancing openness and structure, ensuring a harmonious learning environment that prioritizes functionality, comfort, and playfulness.


Desc
The RED School is a school design located in Surabaya. This project was a 4th Semester design studio from my bachelor’s degree. This studio focused on teaching students the fundamentals of multi-story building design, emphasizing spatial organization, system integration, and functionality.
People












What do you think?