Life at the bottom of the economic hierarchy is not easy. Most of the time, those who have everything, more will be given, and to those who have nothing, everything will be taken. People at the bottom of the economic hierarchy often do not have a good quality of life. Limitations in fulfilling their basic shelter needs have created self-built, informal, overcrowded areas with no legal ownership. This problem alone can lead to far deeper issues. For example, a poor living environment increases the risk of unpredictable tragedies such as diseases, fires, floods, etc. Every day is filled with uncertainty. Oftentimes, they struggle to fulfill their basic needs, let alone secondary and tertiary needs.

The idea of the design is to give poor people everything—not in the sense of providing material wealth, but proving to them that they already have everything they need to improve their lives, free from uncertainty. Thus, the design seeks to maximize the tiny amount of space they have while maintaining a good built environment quality. It aims to educate people on how to build better, showing them that what they have is more than enough to aspire beyond their basic needs.

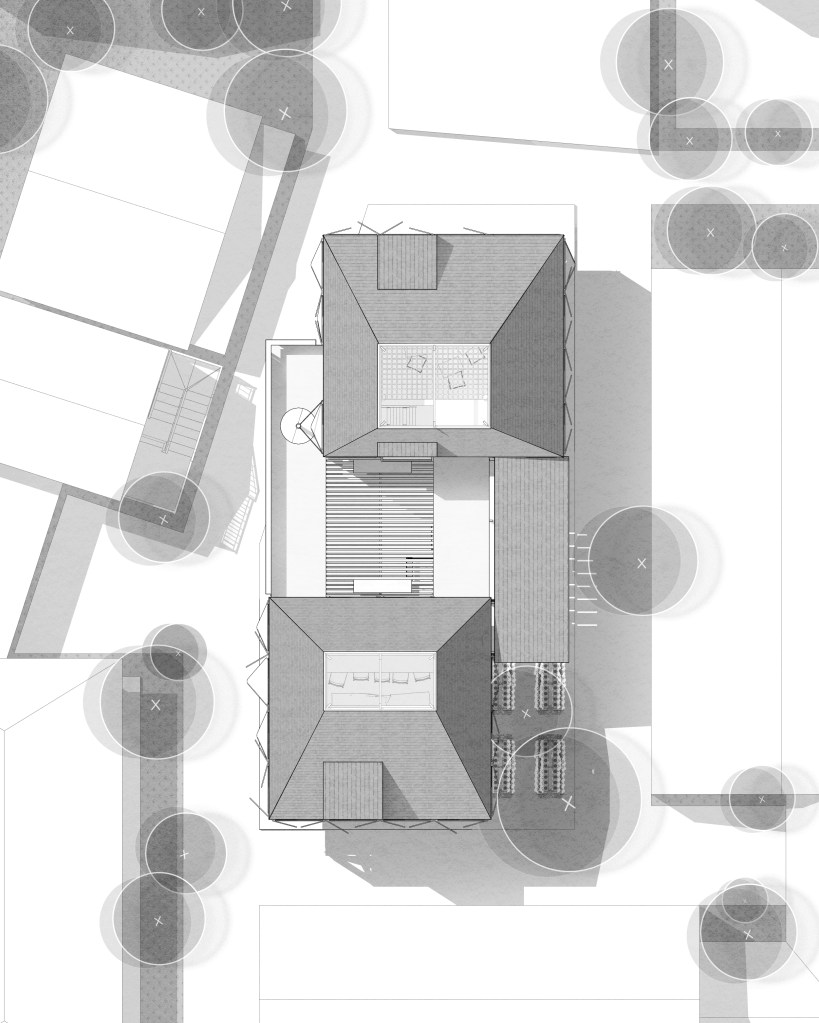
The library is situated in a densely populated kampung in Yogyakarta, Indonesia, where the urban fabric presents several constraints. The tightly packed buildings, separated by narrow alleyways of only 2 to 2.5 meters, leave little to no space for communal activities, limiting social interactions and shared experiences among residents. The lack of open spaces also affects ventilation, contributing to a sense of congestion and restricting the flow of fresh air. Additionally, due to the compact arrangement of structures, natural light struggles to reach the street level, creating dim, shadowed alleyways that can feel unwelcoming and unsafe, particularly at night. These spatial limitations not only impact the quality of daily life but also reinforce the challenges of public engagement, learning accessibility, and overall well-being in the community.

The elevated main platform is a solution chosen to address several issues. By raising the space for activities, especially for learning, we bring people closer to the sky—lifting them above the roof level and allowing them to see the horizon beyond the dense houses in the kampung, symbolizing hope. The platform is constructed using wood with gaps in the flooring, allowing sunlight to penetrate during the day and provide sufficient lighting for more relaxed activities below the platform.

The library has three levels. The ground level consists of two seating areas at the base of the two masses. These seating areas are designed for people to gather, nongkrong or ngerumpi, as the locals call it. The remaining site surface is designed to be flexible, allowing for various events that were previously impossible in the small alleys.
The second floor consists of two main rooms and the elevated platform. One room is arranged like a classroom, while the other is set up as a small library with a communal desk.
The mezzanine level is situated in the attic space of each mass, serving as a playful and explorative area for the people.

The creation of the building started from the idea of a three house. From the adventerous feeling when entering it, and the surge of curiousity that it sparks in our pereption. All this with the benefits mention erlier. The two mass is created for diffferent activities, one is for studying reading and learning, the other is for communal class study or activities. and inbetween is elevated platform open to the sky.



Desc
Life at the bottom of the economic hierarchy is not easy. Most of the time, those who have everything, more will be given, and to those who have nothing, everything will be taken. People at the bottom of the economic hierarchy often do not have a good quality of life. Limitations in fulfilling their basic…
People






What do you think?