
No matter where you are in the process of dying, you are living. Conversely, no matter where you are in the process of living, you are dying. This project explores what it means to be a mortal being, to both live life and eventually leave life. In the revelation of death, one might see it as a disaster. Others might see it as freedom. To actually live as if this is “their last moment” in this life, one will appreciate life like never before. In fact, that might be the liveliest they have ever been. To leave life, on the other hand, will never be easy.

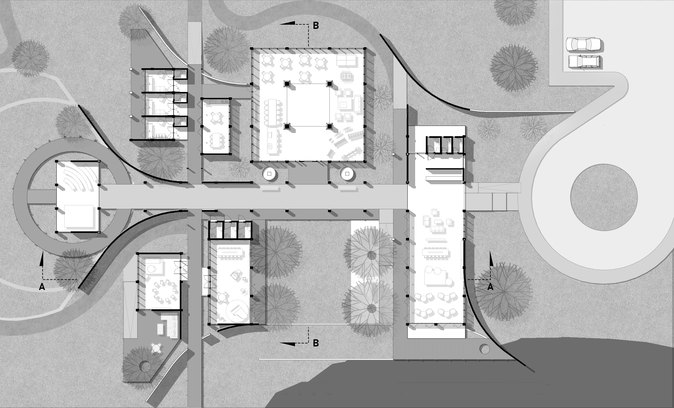
Therefore, the design program is dictated by the five stages of facing death: Denial, Anger, Bargaining, Depression, and finally, Acceptance. A library where we can learn about death. A garden and communal space to relieve our anger. A creative room where we can express and bargain with ourselves. A healing room to ease the pain of dying. Lastly, a chapel to contemplate and finally accept death.

For every new patient who arrives at the facility, they, together with their family, will plant a tree—symbolizing the continuation of life and the memories they share. As time passes, the forest becomes a living tribute, growing alongside the legacy of those who have departed. Loved ones can return to this sacred space, finding comfort in the ever-changing yet enduring cycle of life, reconnecting with their memories, and honoring those they have lost.
Desc
This project delves into the dual nature of living and dying, emphasizing that both processes are intertwined. It outlines a design based on the five stages of death, creating spaces for learning, expression, healing, and acceptance. A tree-planting initiative symbolizes ongoing life and connections to those who have passed.
People








What do you think?