This apartment project in Accra, the capital city of Ghana, was designed for Mr. Eric Appiah. Initiated in 2025, the project aims to create a mid-rise, multi-story residential building featuring two unit types: a larger two-bedroom unit and a smaller one-bedroom unit. While this building typology is common in Ghana, our goal was to develop a new design that both performs efficiently and appeals aesthetically to the people of Ghana. We began by studying the conventional apartment layout, then iterated and refined it to improve spatial quality and environmental performance while maintaining the familiar character of local housing types.
The project site is located at 5°34′53″N, 0°08′24″W, along the southern coast of Ghana near Accra. Positioned within a tropical coastal environment on the Gulf of Guinea, the site benefits from natural sea-breeze ventilation and abundant solar exposure, yet also presents challenges related to coastal humidity. Its urban proximity to Accra provides excellent infrastructure and socio-cultural connectivity, while simultaneously requiring the design to address issues of urban density, local materials, climatic adaptation, and community integration. Consequently, both the architectural and interior design strategies emphasize passive cooling, durable materials, strong indoor–outdoor relationships, and the integration of local craftsmanship and culture.




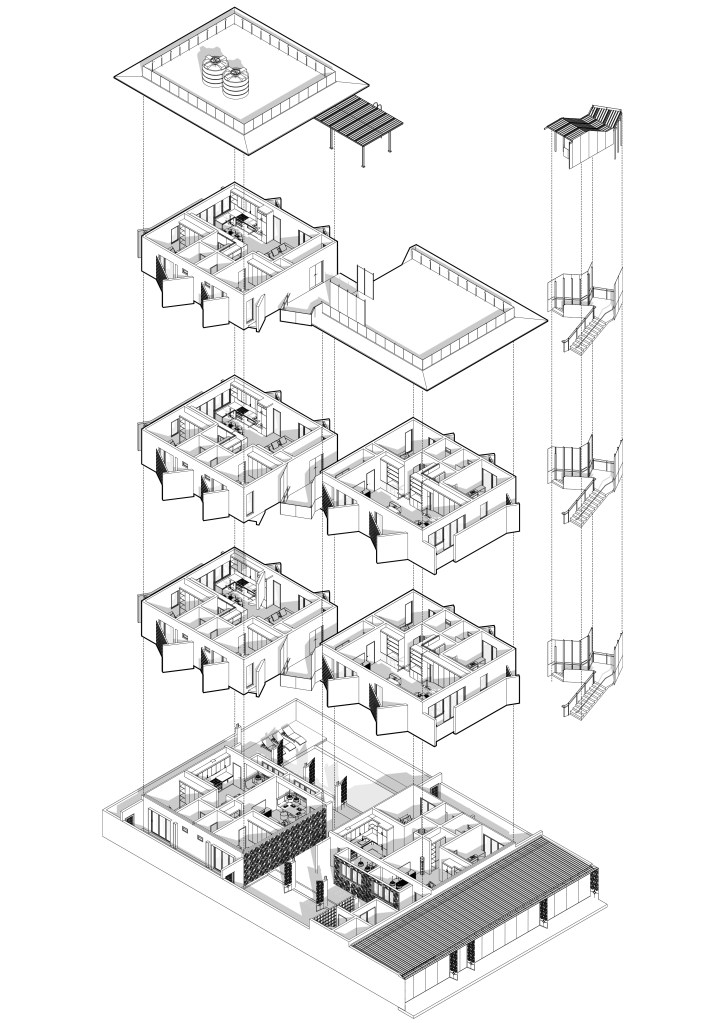
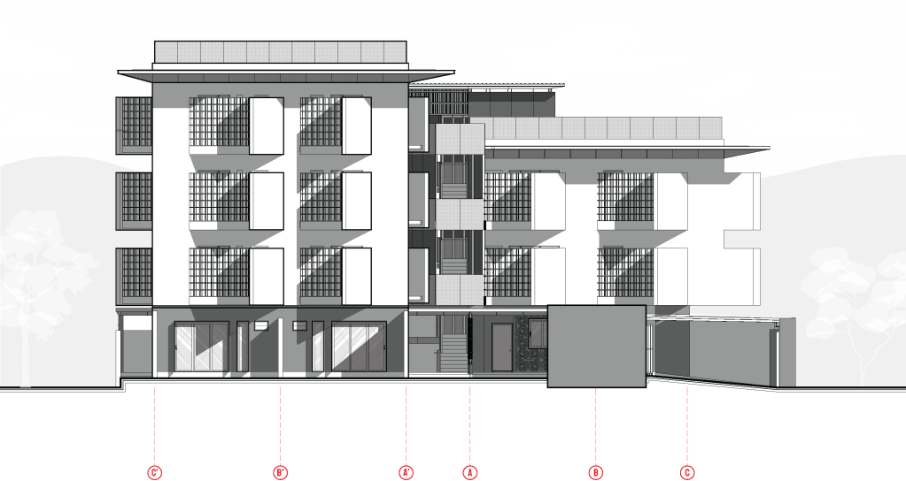
The tropical climate of Ghana encourages us to design with shade as a central element. We explored the interplay between openings and shading, between shadow and light. While the floor plan remains relatively simple, the spatial experience gains depth and richness through the act of “peeling” the building’s walls to form shaded areas. These shaded recesses add both environmental performance and visual complexity to the façade. The building follows a typical floor plan configuration, organized into two main masses.







The site for this project is relatively compact compared to the intended building program. Although the floor plan shares similarities with common apartment layouts found in Ghana, our goal was to achieve a distinct architectural expression. The combination of shading elements and the typical floor plan generates a rhythmic repetition across the façade. These shaded forms not only cast dynamic shadows but also give the building an expressive identity beyond a simple rectangular mass. While solid walls on one side block direct sunlight, the porous breeze blocks on the other allow natural ventilation and continuous airflow throughout the building.


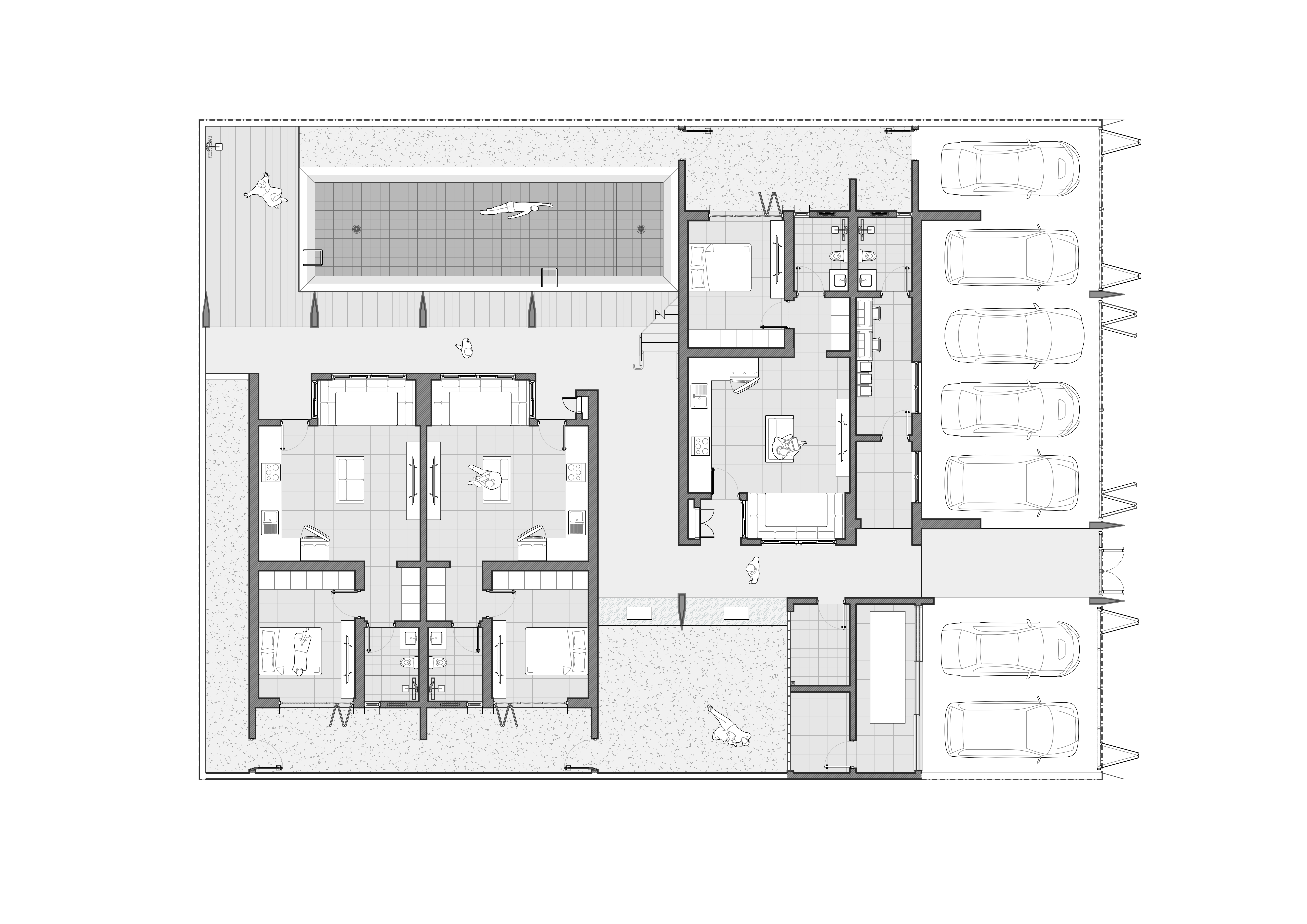
The car park spans across the front of the building, providing space for seven vehicles. It is fully enclosed with perforated fencing, ensuring both ventilation and security. The walls and columns are adorned with Adinkra symbols, celebrating Ghanaian cultural identity, while the canopy roof features woven ceiling panels that help reduce heat and add a tactile layer of craftsmanship. The building’s entrance adopts the same design language as the fence, creating a coherent and unified appearance. From the entrance, a hallway leads toward a central garden, which connects directly to the main staircase positioned at the heart of the building.


Service and utility spaces are positioned at the front of the building, separated from the main living areas to ensure privacy and provide convenient access for maintenance. The security and administration offices are located behind the car park, maintaining functional proximity while remaining discreet. The generator, electrical room, pump room, and tool room are housed within a separate building mass. The generator is accessible through the garage, while the remaining service rooms face the garden and are visually concealed with breeze blocks, allowing ventilation while maintaining aesthetic harmony.


The building mass is composed in a staggered arrangement, creating two open spaces on opposite sides. On the eastern side, a garden runs parallel to the main hallway, capturing the gentle morning sunlight as it filters through the foliage and into the interior. This design establishes a bright and uplifting atmosphere during the early hours of the day, enhancing the spatial experience and fostering a harmonious relationship between the indoor corridor and the outdoor garden.




On the western side, a swimming pool runs along the hallway, introducing a calm and cooling atmosphere. Above it, a floating staircase extends across the space, serving as a striking visual centerpiece. The stair’s light structural frame casts soft reflections onto the water below, while the shimmering surface animates the underside of the steps with shifting patterns of light. As the afternoon sun reaches this side, the interaction between the pool and the staircase creates a dynamic play of light and shadow, enriching the space with a tranquil yet expressive character.




The building accommodates three compact one-bedroom units. One unit faces the eastern garden, while the other two overlook the western reflecting pool. Each unit includes a kitchen, living area, and dining nook—designed for efficient yet comfortable daily living. Both the bedroom and bathroom of each unit open toward a private garden view, oriented away from communal zones to maintain privacy and a close connection with nature.




The upper floors accommodate five larger two-bedroom units—two on the second floor, two on the third, and one on the fourth floor, which also enjoys direct access to the rooftop. Each unit features a living area, dining space, kitchen, and a service balcony for functional needs. Additionally, four balconies are integrated into the façade design, acting as filters for sunlight and views while enhancing privacy and security. This configuration ensures that every unit maintains a comfortable microclimate and a layered visual relationship between interior and exterior spaces.
Desc
This apartment project in Accra, the capital city of Ghana, was designed for Mr. Eric Appiah. Initiated in 2025, the project aims to create a mid-rise, multi-story residential building featuring two unit types: a larger two-bedroom unit and a smaller one-bedroom unit. While this building typology is common in Ghana, our goal was to develop…
People




























